Sie haben Fragen?

Nehmen Sie einfach Kontakt mit uns auf.

Telefon

07732- 820399-0

E-Mail

buero@architekten-marzodko

-meintrup.de

3 Mehrfamilienhäuser  Radolfzell-Böhringen   Bodneseestrasse                                Fa. Staub Schluchsee

 

 

 

 

 

 

 

2016-2018

 

Mehrfamilienhaus Radolfzell   Markthallenstrasse    Fa. Staub Schluchsee

 

 

 

 

 

 

 

2014-2016

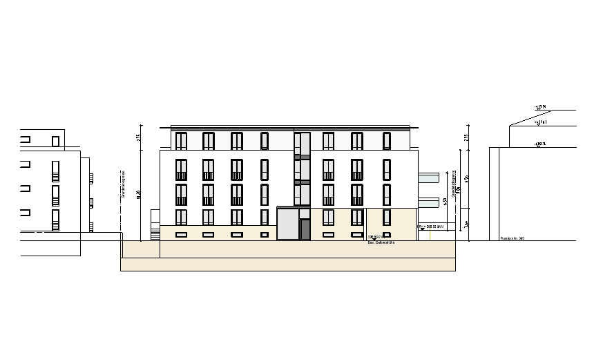
3 Mehrfamilienhäuser Radolfzell Markthallenstrasse/Gartenstrasse                         mb Baugesellschaft

Wohnbebauung Grenzstrasse Singen Baugenossenschaft Oberzellerhau e.G.

Wohnbebauung Steißlingen BDS Konstanz

 

 

 

 

 

 

 

2014-2015

Mehrfamilienhaus Singen Worblinger Str. Baugenossenschaft Oberzellerhau e.G.

 

 

 

 

 

 

 

 

2013-2014

Wohn- und Geschäftshaus mit 24 Wohnungen in Singen  Alpenstraße

 

 

Bauherr

Familienheim Bodensee e.G. Radolfzell

 

 

Jahr

2011

 

 

Wohn- und Geschäftshaus mit 16 Wohnungen in Singen a.H. Höristraße

 

Bauherr

Familienheim Bodensee e.G. Radolfzell

Jahr

2006

 

 

Neubau von 5 Mehrfamilienhäusern mit 45 Wohnungen am "Körnerplatz" Singen a.H.

 

Bauherr

Oberzellerhau e.G. Singen a.H.

 

 

Jahr

2007

 

Neubau Seniorenwohnanlage in Singen a.H.

 

 

Bauherr

Oberzellerhau e.G. Singen a.H.

 

Jahr

2003

 

 

Mehrfamilienwohnhäuser in Radolfzell

 

 

Bauherr

Streit GmbH

 

Jahr

1998

 

 

Druckversion | Sitemap
© Klaus Marzodko, Freier Architekt

Erstellt mit IONOS MyWebsite.